Print current pageProduct Description
- brief introduction
- technical parameter
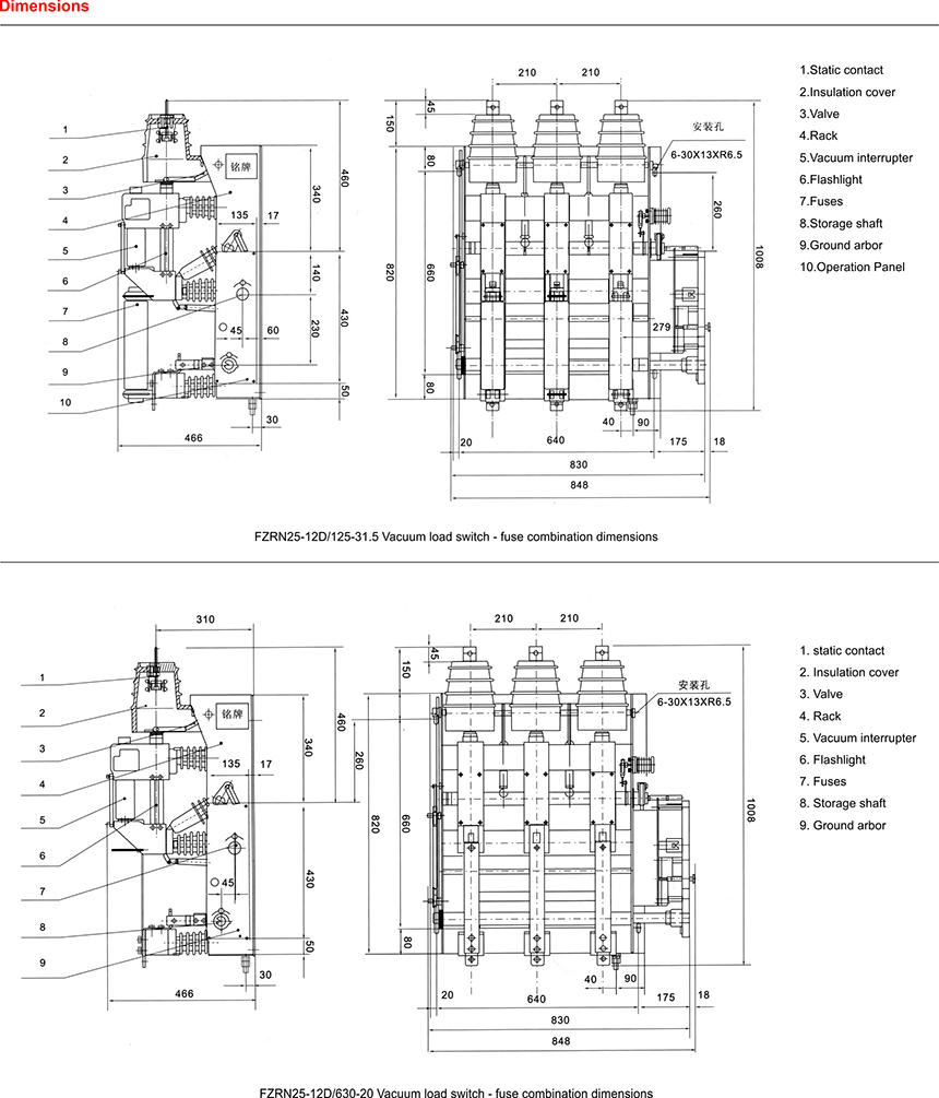
- Product size
Application
FZN25, FZRN25 type vacuum load switch and fuse switch, suitable for three-phase AC 50Hz ring main network or terminal power supply and industrial electrical equipment, for load control and short circuit protection use, load switch open and close the closed loop current, no-load transformer and cable charging current, fuse switch can break any current till rated short circuit current. It adopts the straight move or isolating fracture and vacuum interrupter linkage with function of manual and electric operation.
FZN25, FZRN25 special transmission structure design, arc extinguish chamber only withstand voltage in the moment of closing and breaking, small size, light weight.
FZN25, FZRN25 can perform one operation to realize isolation break and arc extinguish chamber break.
FZN25, FZRN25 has an earthing shutter between the static contact and conductive cylinder of the moving contact, the shutter will be interlocked with earthing switch which ensures safety and convenient maintenance.
Type and meaning
Normal service conditions
Altitude: ≤ 1000m
Ambient air temperature: -15℃~+40℃,
Humidity:
Daily average value of relative humidity: ≤95%
Monthly average value of relative humidity: ≤90%
The ambient air is not significantly polluted by dust, smoke, corrosive and/or flammable gases, vapours or salt.
No severe vibration, inclination of less than 3 ° place.
Technical specifications

中文
ENGLISH
Email:
website:
Service hotline





