Print current pageProduct Description
- brief introduction
- technical parameter
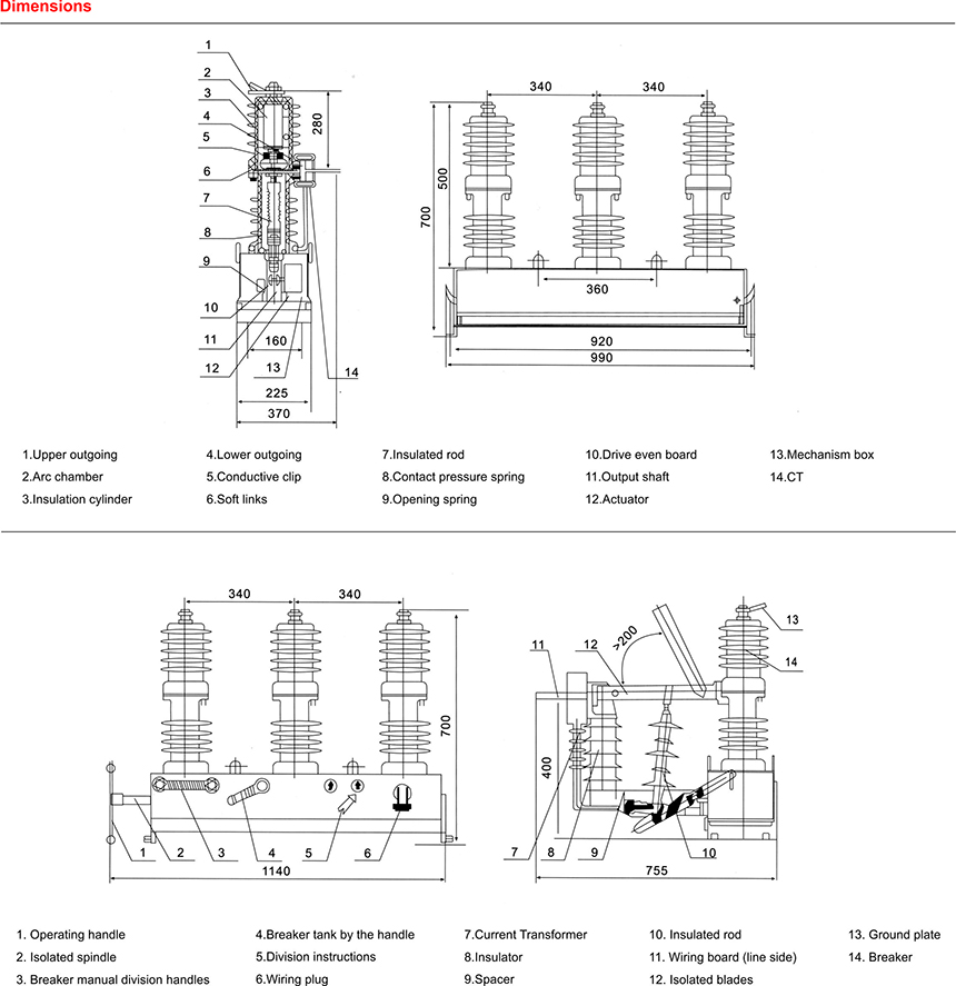
- Product size
Application
ZW32-12 Series outdoor high voltage vacuum circuit breaker(hereinafter call breaker) is used in the three phase power system of AC 50Hz, voltage 12KV, to switch on/off loading current, overloading current and short circuit currents. It suits for protecting and control distribution system of substation, industrial enterprises, and frequent switching in rural network.
This product has small size, light weight, dew proof, and free of maintenance, it can operate under some severe ambient conditions and on polluted site
Type and meaning
Complied standard
GB1984 "AC high voltage circuit breakers"
GB11022 "Common specifications for high-voltage switchgear and controlger "
GB311.1-6 "insulation co-ordination for high voltage transmission and distribution equipment."
GB763 "AC high voltage electrical work in the long term fever."
GB2706 "Dynamic and thermal stability test method for AC high voltage electrical "
GB3309 "high voltage switchgear mechanical tests at room temperature."
DL/T593 "Common specifications for high-voltage switchgear and controlger"


中文
ENGLISH
Email:
website:
Service hotline





